月租637.2元起!近地鐵+商業,龍華區萬科啟城家園公租房介紹

本期保障房介紹

龍華區萬科啟城家園公租房專案

其地理位置及周邊配套如何呢

跟著小編一起看看吧

目前該專案未釋出新的配租申請

本次僅為房源介紹

萬科啟城家園專案簡介

✅專案簡介

本專案位於廣東省深圳市龍華區福城街道觀瀾大道與碧瀾路交匯處西北側, 專案7棟為公租房專案租房

專案北側為華盛觀薈名庭(部分房源為公租房專案)、觀薈裡購物中心租房

東側靠近觀瀾大道、珠三角環線高速租房,還靠近地鐵4號線長湖站;

東北側靠近深圳偉光醫院和深圳市龍華區中心醫院租房

南側靠近深圳市龍華區第三外國語學校租房

專案距離地鐵4號線長湖站步行距離約570米租房,可乘坐9站可到達深圳北站,乘坐12站到達福田區;

本次介紹的房源是龍華公租房專案一房戶型(建築面積約36㎡)、二房戶型(建築面積約68㎡)和三房戶型(建築面積約86㎡)租房

月租637.2元起!近地鐵+商業,龍華區萬科啟城家園公租房介紹

✅專案收費標準(僅參考)

展開全文

⭕配租租金標準租房:13.8元/平方米·月

⭕物業管理費為3.9元/平方米·月

⭕專項維修費為0.25元/平方米·月

⭕單套一房每月租金約637.2元起(面積按36平方米計算)

⭕單套二房每月租金約1203.6元起(面積按68平方米計算)

本批次配租戶型為一房和二房租房,三房戶型暫未配租

注:單套房屋租金租房,在租金標準基礎上,考慮樓層、朝向等因素修正確定,最終以合同為準;

物業服務收費按現行標準執行,如有變更,按最新標準執行租房

💡推薦服務租房

【深圳本地寶房源】首頁租房,可查詢深圳保障房房源資訊及申請情況等

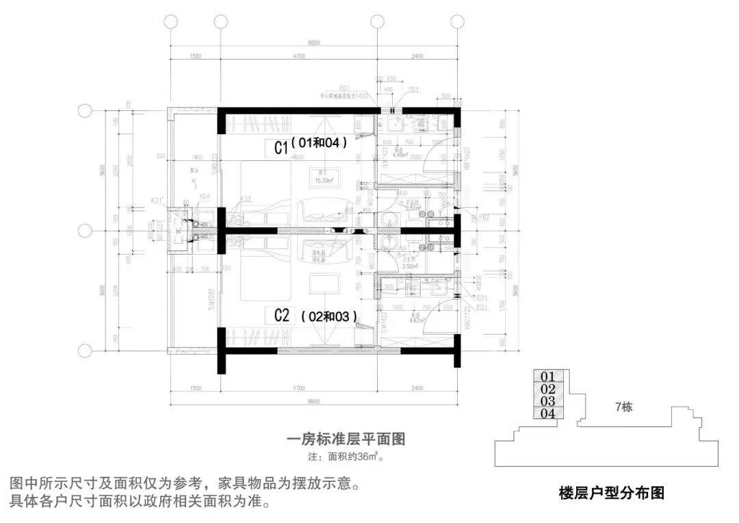
專案戶型圖

月租637.2元起!近地鐵+商業,龍華區萬科啟城家園公租房介紹 月租637.2元起!近地鐵+商業,龍華區萬科啟城家園公租房介紹

圖源租房:龍華區住房和建設局

✅專案平面/戶型圖

月租637.2元起!近地鐵+商業,龍華區萬科啟城家園公租房介紹 月租637.2元起!近地鐵+商業,龍華區萬科啟城家園公租房介紹 月租637.2元起!近地鐵+商業,龍華區萬科啟城家園公租房介紹 月租637.2元起!近地鐵+商業,龍華區萬科啟城家園公租房介紹

(可放大觀看)

圖源租房:龍華區住房和建設局

交通情況及周邊配套

✅交通情況

本專案北側為瀾興路、靠近悅興路租房

西側為泗黎路租房,靠近觀瀾大道、珠三角環線高速;

東側為觀盛四路租房,靠近觀盛五路、五和大道;

南側為翠幽路租房,靠近瀋海高速;

自駕臨近珠三角環線高速出入口,距離約2.4 公里,距離深岑高速出入口約3.9公里租房

🚉地鐵:距離地鐵4號線長湖站步行距離約570米租房,乘坐9站即可到達深圳北站,可換乘5號線、6號線;

🚌公交租房

專案附近有

🚏長湖頭村-公交站(距離專案約175米)

途經公交:E36路、M201路、M225路、M226路、M243路、M464路、M285路、M534路、M310路、M545路、M424路、M557路、M450路、高峰專線43路租房

🚏華盛峰薈名庭公交首末站(位於專案內)

途經公交:M509路租房

🚏悅興碧瀾路口-公交站(距離專案約276米)

途經公交:M225路、M285路、M310路、M464路、M545路、M557路租房

具體途徑各站點的公交線路資訊以交通運輸委員會官方網站為準

月租637.2元起!近地鐵+商業,龍華區萬科啟城家園公租房介紹

✅周圍學校

🏫深圳市龍華區第三外國語學校

九年一貫制公辦學校租房,距離專案約244米;

🏫觀瀾第二小學

公辦小學租房,距離專案約553米;

🏫觀瀾第二中學

公辦初中租房,距離專案約900米;

具體學位情況以龍華區教育局或承租小區周邊學校釋出的資訊為準

月租637.2元起!近地鐵+商業,龍華區萬科啟城家園公租房介紹

✅周邊商業

位於專案北側約230米觀薈裡租房

距離專案1公里左右有天虹購物中心(龍華福城店)租房;兩公里左右有天虹商場(觀瀾店)、萬達廣場等

月租637.2元起!近地鐵+商業,龍華區萬科啟城家園公租房介紹

✅附近醫療

🏣龍華區中心醫院丹湖社羣健康服務站

距離專案約115米租房

🏣福城街道悅興社羣健康服務中心

距離專案約142米租房

🏣深圳偉光醫院

距離專案約326米租房

🏣深圳市龍華區中心醫院

距離專案約771米租房

💡推薦服務租房

掃描下方二維碼租房,跳轉【深圳保障房樓盤地圖】首頁, 可直觀查詢房源位置及房源型別等

月租637.2元起!近地鐵+商業,龍華區萬科啟城家園公租房介紹
本站內容來自使用者投稿,如果侵犯了您的權利,請與我們聯絡刪除。聯絡郵箱:[email protected]

本文連結://sdhbcy.com/post/4157.html

🌐 /