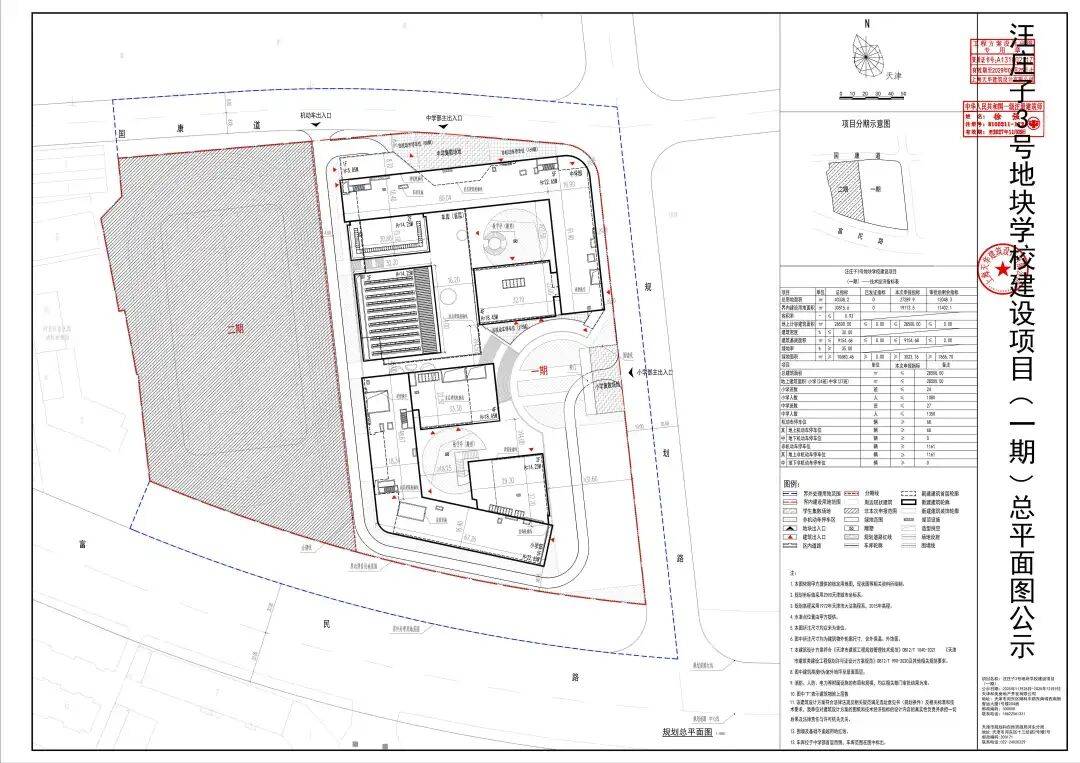
11月28日,天津市規劃和自然資源局河東分局釋出“(河東區)關於汪莊子3號地塊學校建設專案(一期)建設工程設計方案總平面圖的公示”,河東區汪莊子3號地塊將新建一所學校,包括小學和中學中學。
根據公示的平面圖,該學校北至國康道,南至富民路,分為一期和二期,一期總用地面積40338.2平方米,小學班數≤24個班,小學人數≤1080人,中學班數≤27個班,中學人數≤1350人中學。
來源:天津是規劃和自然資源局網站
11月28日,天津市規劃和自然資源局河東分局釋出“(河東區)關於汪莊子3號地塊學校建設專案(一期)建設工程設計方案總平面圖的公示”,河東區汪莊子3號地塊將新建一所學校,包括小學和中學中學。
根據公示的平面圖,該學校北至國康道,南至富民路,分為一期和二期,一期總用地面積40338.2平方米,小學班數≤24個班,小學人數≤1080人,中學班數≤27個班,中學人數≤1350人中學。
來源:天津是規劃和自然資源局網站
本文連結://sdhbcy.com/tags-%E7%9C%BC%E9%8F%A1%E6%A1%86.html